Ensemblegeschützter Vierseithof – behutsam modernsisiert
Der stark verfallene, ensemblegeschützte Vierseithof wurde zu einem hochwertigen Wohnhaus mit Pferdestallungen und Gästehaus umgebaut. Das für die Gegend typische Feldsteinmauerwerk wurde sorgfältig restauriert, zerstörtes Mauerwerk vorsichtig abgetragen und aus altem Material in der traditionellen Scheunenform wiederaufgebaut.
Handwerkliche Herausforderungen
Dabei stellte das erforderliche Handwerk eine Herausforderung dar. Alte Maurermeister wurden dazu aus dem Ruhestand geholt, um ihre jungen Kollegen zu unterweisen. Da der Umbau hohen funktionalen und ökologischen Ansprüchen genügen sollte, wurde zur Optimierung der Energiebilanz und des Raumklimas den Feldsteinmauern auf der Innenseite eine Vormauerung aus porosierten Ziegeln vorgeblendet. Die Fensterlaibungen wurden konisch in das 90 Zentimeter dicke Mauerwerk geschnitten, außen sichtbar blieben die tragenden Betonrahmen der raumhohen Fensterelemente. Tragende Wandscheiben und Kamine sind aus Sichtbeton mit Brettschalung hergestellt.
Tadelakt im Bad
Im Bad wurden die Wände in einer alten Technik mit weißem Tadelakt (ein historischer, ursprünglich von Berbern erfundener Kalkglanzputz) beschichtet. Das Dach ist mit Zellulose gedämmt, beheizt wird das Anwesen mit Erdwärme. Zentrales Thema waren Raumfolgen, Durchblicke und wahrnehmbare Naturnähe. Die großflächigen Verglasungen, Alukonstruktionen mit nur 2 Zentimeter breiten Profilen, lassen sich komplett öffnen, um Innen- und Außenraum zu verbinden und den Blick zu lenken auf den Innenhof, die Pferdekoppeln und in den Garten …
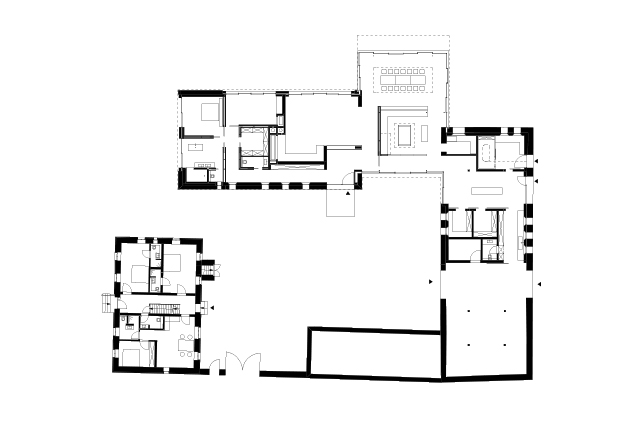
Glaspavillon als modernes Aperçu
Der große Wohnraum mit dem 3 Meter breiten Kamin wird von einer betonierten Sitzbank gerahmt. Der Flur führt zu den privaten Räumen mit Bad, Ankleide, kleinem Wohnraum und Schlafzimmer. Das Haus ist eingeschossig, das Dach nicht ausgebaut. Als modernes Aperçu ragt ein Pavillon als Zwischentrakt aus den Feldsteinmauern. Er umschreibt Küche und Essbereich und verbindet den privaten Wohnraum mit dem Wirtschaftstrakt der ehemaligen Scheune.
Teppich an der Decke
Als Bodenbelag wurde im Esszimmer und Wirtschaftsbereich ein geschliffener Estrich verwendet, im Wohnzimmer und Bad liegen Naturstein und in den privaten Rückzugsräumen Dielen aus Räuchereiche. Zur Verbesserung der Akustik ist über dem Esstisch eine künstlerische Teppicharbeit von Sigrid Wylach angebracht.
Pläne und Grundrisse modernisierter Vierseithof:
Architekten: Anne Lampen Architekten
„Die schöne Atmosphäre des Vierseithofes in seiner geschlossenen Kubatur zu erhalten, war mir besonders wichtig. Anstatt sie zu überformen, habe ich die kompakte Massivität des Natursteinmauerwerks sowohl im Außen- als auch im Innenraum haptisch erlebbar gestaltet.“
Gebäudedaten modernisierter Vierseithof:
- Standort: Brandenburg
- Grundstücksgröße: 10.600 m²
- Wohnfläche: 450 m²
- Zusätzliche Nutzfläche: 260 m²
- Anzahl der Bewohner: 2
- Bauweise: massiv (Feldstein, Beton, Stahl/Glas)
- Primärenergiebedarf: 60,2 kWh/m²a
- Fertigstellung: 2010
Fotos modernisierter Vierseithof:
Werner Huthmacher Photography, Berlin
Dieses Haus ist erschienen in: “Häuser des Jahres 2013”, Callwey Verlag.