Rätselhaftes Hofhaus

von Bernardo Bader

Bernardo Bader Hofhaus Holzelementfassade Lageplan
Lageplan

Das Hofhaus bietet viel Privatheit

Das typische Vorarlberger Einfamilienhaus im Rheintal besetzt mittig ein Grundstück und hält nach allen Seiten einige Meter Restabstand, der durch gärtnerisches Zutun einmal einen nicht einsehbaren Freibereich ergeben soll.

Bernardo Bader Hofhaus Holzelementfassade Grundriss UG
Grundriss Untergeschoss

Architektonische Alternative

Dieses Haus bietet eine architektonische Alternative. Der hohe Wohnwert eines abgeschlossenen, blickdichten Gartens auf dem kleinen Grundstück wird durch die Typologie „Hofhaus“ erreicht. Der Bauplatz liegt als ebene Fläche in einem eng parzellierten zukünftigen Siedlungsgebiet am Ortsrand von Sulz, wo die Bebauung allmählich in eine landwirtschaftlich genutzte Grünzone übergeht.

Bernardo Bader Hofhaus Holzelementfassade Grundriss EG
Grundriss Erdgeschoss

Spezielle Holzelementfassade

Das teilunterkellerte Haus verfügt über zwei Wohngeschosse. Ebenerdig schließt rechtwinklig im Nordosten an Garage und Nebenräume ein querliegender Großraum für Kochen, Essen und Wohnen an. Beide Stirnseiten des Winkels setzen sich fort, um sich zu einem begrünten Wohnhof mit Baum zu schließen. Diese Umfassungswände werden von unterschiedlich breiten Dachstreifen gesäumt, sodass sich im Innenbereich geschützte Freisitze ergeben. Große Glasschiebetüren lassen Innen- und Außenraum ineinander übergehen. Die Kubatur des Hauses integriert den Freiraum also, ein von den Fassadenleisten diskret schraffierter Ausblick zur Straße und nach Nordwesten nimmt dem Hof das Hermetische: Die Landschaft erscheint darin wie ein gerahmtes Gemälde.

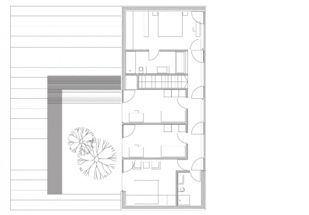
Bernardo Bader Hofhaus Holzelementfassade Grundriss OG
Grundriss Obergeschoss
Bernardo Bader Hofhaus Holzelementfassade Schnitt
Schnitt

Wohnen nach zwei Koordinaten

Im Obergeschoss kehrt sich die Nutzung um. Hier ist der Garagentrakt überbaut, während der Essplatz die Höhe bis unters Dach genießt. Außer das Elternschlafzimmer sind alle Schlaf- und Arbeitsräume mit großen Glasflächen auf den Innenhof orientiert, erschlossen von einem der Traufe folgenden Flur. Der Keller des Niedrigenergiehauses ist massiv ausgeführt, darauf steht eine Holzelementkonstruktion

 

Pläne und Grundrisse Hofhaus:


Architekt:  Bernardo Bader

Zentrale Idee des Entwurfs ist der hohe Wohnwert, der durch eine abgeschlossene und nicht einsehbare Freifläche auf einem verhältnismäßig kleinen Grundstück entstehen kann.


Gebäudedaten Hofhaus:

  • Standort: Sulz(A)
  • Anzahl der Bewohner: 3
  • Wohnfläche: 170 m²
  • Grundstücksgröße: 752 m²
  • Zusätzliche Nutzfläche: 50 m² (Keller)
  • Bauweise: massiv (KG), Holz-Elementbausweise (EG + OG)
  • Heizwärmebedarf: 28 kWh / m²a
  • Fertigstellung: 2010


Fotos:

Adolf Bereuter, Dornbirn

Dieses Haus ist erschienen in: “Häuser des Jahres 2012″, Callwey Verlag.