Refugium im Naturschutzgebiet

von Bembé Dellinger Architekten und Stadtplaner

Ein Refugium mitten in der Landschaft

Mit diesem Haus im Salzkammergut entstand mitten im Naturschutzgebiet Irrsee ein Refugium für eine Familie und ihre Freunde. Es wird momentan als Ferienhaus genutzt, hat aber die Ausstattung, um später auch als Altersruhesitz zu genügen. Die Genehmigung für einen sogenannten Sternchenbau mitten in der Natur war möglich, weil das Grundstück zuvor bebaut war. Bedingung war allerdings, dass das neue Haus in Höhe und Kubatur dem alten entspricht, auch ein Satteldach war vorgeschrieben.

bembe-dellinger-mitten-im-landschaftsschutzgebiet-lageplan
Lageplan

Freie Formensprache trotz Naturschutzgebiet

Dennoch gelang den Architekten ein Entwurf „im Spannungsfeld zwischen strengem Natur- und Bestandsschutz“, der den „Wunsch nach einem eigenständigen und starken Gebäude“ erfüllt, wie sie sagen. Das flache Satteldach wird diagonal aufgenommen und durch einen Balkon im Dachgeschoss einseitig verkürzt. An die Garage, die auch ehemals separat stand, schließt jetzt ein offenes Dach an, darunter liegt geschützt der Eingang. Auch die nach Süden und Westen in den Obergeschossen mit einer runden Kontur abschließende Fassade holt eine neue, freie Formensprache in die Landschaft.

bembe-dellinger-mitten-im-landschaftsschutzgebiet-grundriss-untergeschoss
Grundriss Untergeschoss

Wellness im UG, Hotelkomfort im OG

Wegen der Auskragungen wurde eine Mischbauweise aus Stahlbeton und Mauerwerk gewählt, die Schindelverkleidung erinnert an die ursprünglich geplante Holzkonstruktion und beheimatet das Massivhaus gleichzeitig in der Region. Das Haus hat vier Geschosse. Über dem Keller, der auch die Annehmlichkeiten von Wellnesseinrichtungen bietet, liegt eine große Erdgeschosswohnung. Von hier führt mit schwungvoller Geste eine repräsentative Treppe nach oben. Die Kellerstiege ist als dienstbarer Abgang an die Speisekammer angeschlossen. Im ersten Obergeschoss erwartet einen Hotelkomfort. Hier liegen Gäste- oder Kinderzimmer, alle mit eigenem Bad.

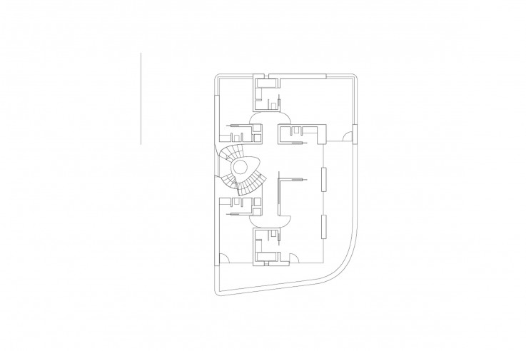
bembe-dellinger-mitten-im-landschaftsschutzgebiet-grundriss-erdgeschoss
Grundriss Erdgeschoss
bembe-dellinger-mitten-im-landschaftsschutzgebiet-grundriss-obergeschoss
Grundriss Obergeschoss

Besondere Atmosphäre: historischer Kachelofen

Im Dachgeschoss folgt eine weitere Wohnung; sie dient den Eigentümern bei kurzen Aufenthalten, wenn sie nicht das ganze Haus bewirtschaften wollen. Die Innenräume werden von Douglasien-Holz bestimmt. Als Parkett, Wand- oder Deckenverkleidung und Material für die Einbaumöbel wurde es nach einer besonderen Rezeptur geschliffen und geseift. Neben dem akkuraten Ausbau ließen die Bauherren einige Spolien einfügen: ein historischer Kachelofen im Dachgeschoss, eine barocke Holzdecke in der unteren Küche und im Treppenhaus auf dem Weg nach oben ein Altarbild.

 

Pläne und Grundrisse:


Architekt:
Bembé Dellinger Architekten und Stadtplaner

Der Neubau bewegt sich im Spannungsfeld zwischen strengem Natur- und Bestandschutz (…).


Gebäudedaten:

  • Standort: Rabenschwand (A)
  • Anzahl der Bewohner: 4
  • Wohnfläche: 581 m²
  • Grundstücksgröße: 9.630 m²
  • Zusätzliche Nutzfläche: 78 m²
  • Bauweise: Massivbauweise
  • Baukosten gesamt: 2 Mio. €
  • Heizwärmebedarf: 29,01 kWh/m2a
  • Fertigstellung: 06/2011


Fotos:

Stefan Müller-Naumann, München

Dieses Haus ist erschienen in: “Häuser des Jahres 2014”, Callwey Verlag.